Contributed to the blog by Mark, Roll Tooling Project Engineer, Roll Tooling Department at Formtek.
It started with a simple request.
A customer reached out needing a replacement roll and sent over a drawing from another supplier to use as a reference. It was a reasonable thing to do. Comparing vendors, shopping around, keeping costs in check. That's just smart business. Our roll tooling engineer took one look at the drawing and immediately recognized an opportunity: not to criticize the competitor, but to have an honest conversation about what separates one tooling provider from another, and what that difference actually costs in the long run.
What followed was a detailed, straightforward exchange, one that turned a routine quote request into a real teaching moment about transparency, documentation, and the true cost of tooling.
The Drawing That Raised Questions
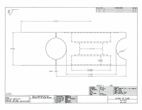
When the engineer reviewed the competitor's drawing, something was immediately clear: it was incomplete. Critical dimensional information was missing. No width measurements. No metal line or flange thickness. No roll height. Only a diameter, a rim gap, and a radius.
For someone unfamiliar with roll tooling, that might seem like a minor oversight. For a manufacturer, it is anything but. Without those dimensions, there is no way to produce a replacement roll from that print. There is also no way to regrind one without first physically examining the roll itself and reverse engineering its geometry, a process that adds both time and cost before a single cut is made.
In a planned maintenance situation, that extra step is an inconvenience. In an emergency, it can mean serious, unplanned downtime.
![]() |
|
| Competitor's Drawing |
Formtek's Drawing |
The Real Problem: Dependency Without Information
Here is what makes incomplete drawings more than just a technical nuisance: they create dependency.
When a customer does not have full documentation for their tooling, their options narrow considerably. They cannot easily bring in a second manufacturer to help. They cannot quickly respond to an urgent situation. They are, in a very practical sense, tied to the original supplier. Not because of loyalty or preference, but because that supplier holds the only information that makes the tooling reproducible.
That is not a partnership. It is leverage.
The engineer made this point plainly: you paid for a custom tool set. That means you paid for the engineering behind it. A fully dimensioned drawing (one that any qualified CNC technician could use to manufacture or regrind that roll) should be part of what you receive. The information belongs to you.
Formtek's Philosophy: Your Drawings, Always
This is where the conversation shifted from problem to principle.
At Formtek, the standard is simple: customers receive complete CAD drawings for their tooling. Always. That includes regrind sheets, replacement roll records, spacer and shim documentation, and anything else tied to the tooling set over its lifetime. Not because it is legally required. Because it is the right way to do business.
What does that mean in practice? It means that if Formtek ever ceased to exist tomorrow, customers would still have everything they need to maintain their tooling through any qualified vendor. It also means that having that documentation in hand gives customers the ability to negotiate, because when the engineering work is already done, a manufacturer can focus on production rather than starting from scratch, and pricing should reflect that.
Information reduces cost. It also reduces risk. That is the investment.
The Hidden Math of Roll Diameter
The conversation did not stop at documentation. The engineer also took a close look at the competitor's roll design itself, specifically the diameter of the side rolls.
What he found was telling: the competitor's rolls were designed with considerably smaller diameters than what Formtek supplies for comparable applications. Smaller diameter rolls may lower the upfront cost of the tooling, but they also mean shorter service life. A roll with a smaller diameter simply has less material to work with across its regrind cycle. Where a Formtek roll might support five to six quality regrinds, a smaller-diameter roll may reach the end of its useful life after two or three. At that point, you are looking at wall thickness concerns, potential counterbore undercutting, and contour profile cracking under the forces required to reshape.
That means more frequent replacements. More downtime between cycles. And a total cost that, spread over the life of the tooling program, can far exceed whatever was saved at the point of purchase.
The math is not complicated, but it does require looking past the invoice.
Tooling Is a System
One more point from the engineer worth carrying forward: tooling is not a collection of individual parts. It is a system, and a well-designed system is built so that everything wears out together.
When driven rolls are sized and specified to support six rework cycles and side rolls are only capable of five or six as well, everything ages in alignment. When side rolls are undersized, worn down and replaced halfway through the driven roll's lifespan, you are no longer managing a system. You are managing a series of unplanned expenses.
Good tooling design accounts for this from the beginning. It is part of why the upfront cost looks different between suppliers. It is also part of why the long-term cost does too.
The Point Is Not the Price
To be clear: the point of this conversation was never to argue that the competitor's tooling was bad, or that customers should not compare options. Shopping around is reasonable. Price matters.
The point is that price is not the whole picture.
When you evaluate tooling costs, the questions worth asking go beyond the quote. Do you have complete drawings? Can any qualified vendor regrind or replace your rolls from the documentation you have on hand? Are the rolls designed to maximize life across the full regrind cycle? And what happens if your current supplier is unavailable when you need them most?
Formtek's approach starts with the belief that customers deserve answers to all of those questions, and that transparency, documentation, and sound engineering design are not premium extras. They are the baseline.
Sometimes we could do a better job of explaining that. Consider this a start.
Have questions about your current tooling set or want to review your documentation? Reach out to the Formtek roll tooling team. We are always glad to take a closer look.


